Termékek
Kúpfogaskerekes kapuszelep
  • Kúpfogaskerekes kapuszelepKúpfogaskerekes kapuszelep

Kúpfogaskerekes kapuszelep

A JQF Valve egy kínai szelepgyártó és -szállító. Kiváló minőségű kúpfogaskerekes tolózáraink olyan kézi tolózárak, amelyek kúpkerekes (tekercses) hajtóművet használnak a nyitáshoz és záráshoz. Ez a hajtómű munkatakarékos és nyomatéknövelő hatást ér el, így különösen alkalmas a kapu precíz és stabil szabályozására nagy átmérőjű, nagy nyomású körülmények között. Kúpkerekes tolózáraink jelentős árelőnyt kínálnak.

As the professional manufacturer of durable bevel gear gate valve, JQF Valve can also design and manufacture non-standard valve products according to customer requirements, providing you with networked, information-based, and intelligent industrial valves.

Termékhasználat

Z540H, Z540Y, Z540W, PN16 ~ PN160 típusú acél kúpkerekes fogaskerekes tolózár, a Lianggu valve Co., Ltd. által gyártott. Kúpkerékhajtás, karimás csatlakozás, ék típusú rugalmas kapu. Az ülés tömítőfelületének anyaga hegesztő ötvözet (Z540H-16C ~ 160, Z540Y-16C ~ 160, Z540Y-16I ~ 160I, Z540Y-16P ~ 160P, Z540Y-16R ~ 160R), Z540Y-16R ~ 160R 160P, Z540W-16R ~ 160R), névleges nyomás PN16 ~ PN160. A szelepház anyaga szénacél (Z540H-16C ~ 160, Z540Y-16C ~ 160), króm-molibdénötvözet acél (Z540Y-16I ~ 160I), rozsdamentes acél (Z540W-16P ~ 160P, Z540W-16P ~ 160P, Z540Y-16P ~ 160P, Z540Y-R4-10P 160R, Z540Y- 16R ~ 160R) tolózár.

A termék előnyei:

1. A testre szabott kúpkerekes tolózárak fejlett szabványokat, megbízható tömítést, kiváló teljesítményt és vonzó megjelenést biztosítanak.
2. Ék alakú szeleplemez szerkezet a rugalmas kapcsoláshoz.
3. A szeleplemez és az ülés Stellite ötvözetből van hegesztve.
4. A szelepszár kioltáson és temperáláson megy keresztül a fokozott korrózió- és kopásállóság érdekében.
5. Többféle csőkarima-szabvány és karimatömítő felülettípus áll rendelkezésre.
6. Kiváló minőségű kúpfogaskerekes tolózárak különféle karosszéria-anyagokból állnak rendelkezésre, hogy megfeleljenek a különböző nyomás-, hőmérséklet- és közegviszonyoknak.

Teljesítmény paraméterek

modell PN Üzemi nyomás/MPa Üzemi hőmérséklet/℃ Megfelelő adathordozó
Z540H-16C-160 16-160 1,6-16,0 ≤425 Víz, gőz, olaj
Z540Y-16C-160 16-160 1,6-16,0 ≤425 Víz, gőz, olaj
Z540H-16I-160 16-160 1,6-16,0 ≤550 Gőz, olaj
Z540W-16P-40P 16-40 1,6-4,0 ≤150 Korrozív közeg
Z540Y-16P-160P 16-160 1,6-16,0 ≤150 Korrozív közeg
Z540W-16R-40R 16-40 1,6-4,0 ≤150 Korrozív közeg
Z540Y-16R-160R 16-160 1,6-16,0 ≤150 Korrozív közeg

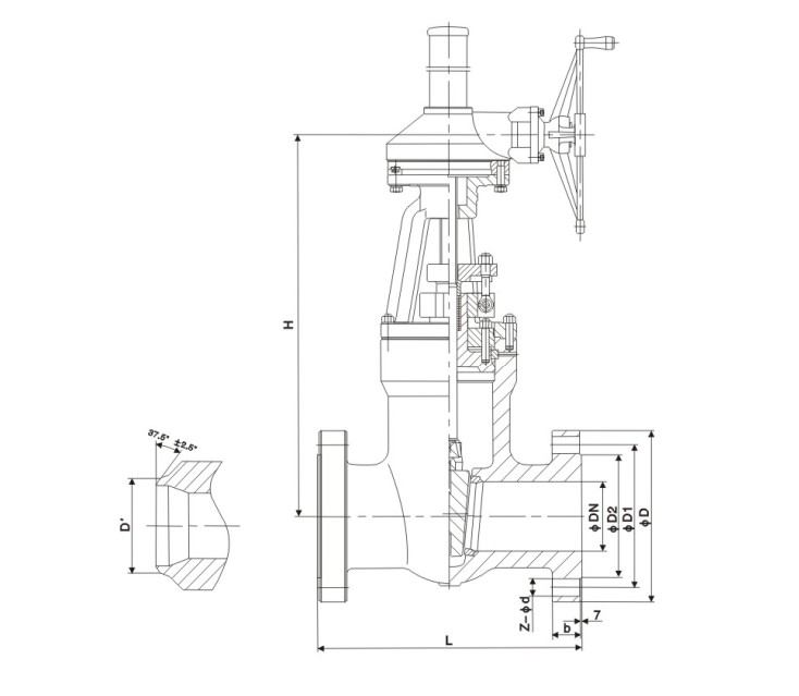
A fő forma és csatlakozási méretek

Névleges átmérő A fő méretek és csatlakozási méretek
L D D1 D2 b Z-d H
Z540H-16C
200 400 335 295 265 26-3 12-Φ23 730
250 450 405 355 320 30-3 12-Φ25 897
300 500 460 410 375 30-3 12-Φ25 1032
350 550 520 470 435 34-4 16-Φ25 1170
400 600 580 525 485 36-4 16-Φ30 1330
450 650 640 585 545 40-4 20-Φ30 1541
500 700 705 650 608 44-4 20-Φ34 1676
600 800 840 770 718 48-5 20-Φ36 1874
700 900 910 840 788 50-5 24-Φ36 2083
800 1000 1020 950 898 52-5 24-Φ41 2400
Z540H-25
200 400 360 310 278 34-3 12-Φ25 730
250 450 425 370 332 36-3 12-Φ30 897
300 500 485 430 390 40-4 16-Φ30 1032
350 550 550 490 448 44-4 16-Φ34 1170
400 600 610 550 505 48-4 16-Φ34 1330
450 650 660 600 555 50-4 20-Φ34 1541
500 700 730 660 610 52-4 20-Φ36 1676
600 800 840 770 718 56-5 20-Φ41 1874
700 900 955 875 815 60-5 24-Φ42 2083
800 1000 1070 990 930 64-5 24-Φ48 2400









Szerkezeti kép

Hot Tags: Kúpkerekes tolózár, Kína, testreszabott, minőségi, tartós, haladó, gyártó, szállító, gyári, raktáron
Kérdés küldése
Elérhetőségei
  • Cím

    No.1, North 1st Road, Stainless Steel New Town, Lecong Steel World West Road, Shunde District, Foshan City, Guangdong tartomány, Kína

A tolózárral, gömbszelepekkel és visszacsapó szelepekkel vagy árlistával kapcsolatos kérdéseivel kapcsolatban kérjük, hagyja e-mail-címét, és 24 órán belül felvesszük Önnel a kapcsolatot.

X
Cookie-kat használunk, hogy jobb böngészési élményt kínáljunk, elemezzük a webhely forgalmát és személyre szabjuk a tartalmat. Az oldal használatával Ön elfogadja a cookie-k használatát. Adatvédelmi szabályzat
Elutasít Elfogadás